Kunngjeringar og høyringarVil du vere med å seie di meining om korleis kommunen vår skal utviklast? Planar vi ønsker innspel til vil vise på denne sida inntil høyringsfristen går ut. Les meir
Varsel om offentleg ettersyn av utbyggingsavtale – H-gaarden H-gaarden AS og Ålesund kommune skal inngå utbyggingsavtale for H-Gaarden, høyringsfrist er 30.04.2026.
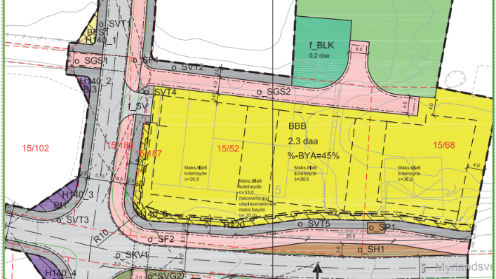
Varsel om oppstart av detaljregulering for Simenplassen, gbnr. 521/6 mfl. Frist for innspel: 24.04.2026
Varsel om oppstart av detaljregulering for Ellingsøyvegen 700 - gbnr. 155/18 Frist for innspel: 20.04.2026
Høring: Temaplan for naturmangfold Vi ønsker innspill til Temaplan for naturmangfold. Høringsfristen er 24. april.
Kommuneplanens samfunnsdel på høring Utkast til ny samfunnsdel er lagt ut på offentlig høring. Frist for innspill er 10. april.
Melding om planvedtak - reguleringsendring for Nihusvegen gbnr. 523/248 - Storbakken Klagefrist: 20.03.2026
Forslag om midlertidig endring av alkohollovens bestemmelse om maksimaltid for skjenking under fotball-VM for herrer 2026 Ålesund kommune sender med dette på høring forslag til midlertidig endring av kommunens bestemmelse om maksimaltid for skjenking, i forbindelse med av...
Oppheving av reguleringsplanar Kommunestyret i Ålesund vedtok 21.03.2024 å starte ein prosess med oppheving av eldre reguleringsplanar. Formålet er å rydde i planregisteret, oppdate...